.png/:/cr=t:0%25,l:0%25,w:100%25,h:100%25/rs=w:600,h:600,cg:true)
At Ace Engineering Group, we are committed to delivering the highest quality and standards for every client, regardless of the project size or scope. Our ultimate satisfaction comes from knowing our clients are fully satisfied with the work we deliver.
We identified over 700 issues at a reputable food manufacturer that we work with.
Our aim with them was to elevate their standards to 'Ace Standards' through our comprehensive audit work.
Our goal was to ensure they not only meet but exceed industry expectations, delivering the highest quality for both their audits and customers, ultimately setting them apart in the market.

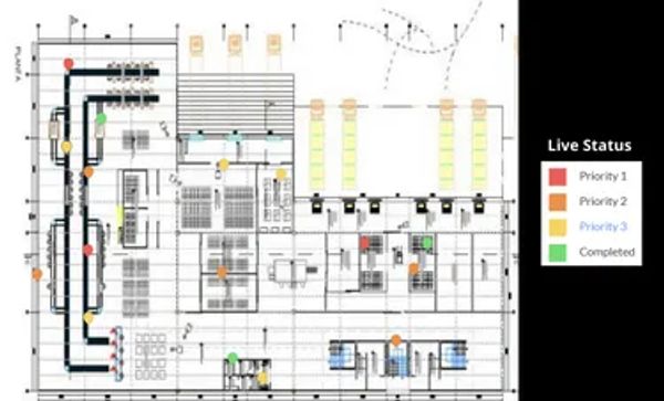
We specialise to each line or area for each report. Everything is easily tracked and remedial works can be done and assigned to right Ace department if this option is required.
Our audits help identify potential issues before they become costly problems, ensure compliance with industry regulations, and optimise production efficiency. By pinpointing areas for improvement, we help factories operate safely, reliably, and at peak performance.
While supporting one of our clients, our team went the extra mile to ensure their standards stayed exceptionally high. We created 28 detailed PDF reports, each outlining recommended actions and practical solutions, giving the client a clear roadmap to maintain peak performance and operational excellence.

We offer our clients advanced real-time tracking through the site's floorplan. This feature provides up-to-the-minute updates, allowing you to monitor the progress of each job, see when it's completed with a report, and stay informed about any outstanding tasks.
These are just some of the issues we've picked up from previous audit work for our clients:
- Lighting Survey - Damage plug and sockets
- Electrical Compliance - Cable trailing on floors
- Fire Safety Risk - Cable management
- Pest Control - Damaged Cables
- Contamination risk - Poor cable installation
- Air leaks report - Trip Hazards
- Rusty Motors & Cables - Electrical Solutions
- Rusty parts
- Broken enclosures & buttons
- Building damage
- Holes in the walls
- Redundant equipment









Ace House, Millindale, Maltby, Rotherham, S66 7LE
Email - Info@Ace-Engineering-Group.co.uk Office Phone - 01709 247 007 Emergency 24/7 Phone - 074909 36670